





















Sky Gardens
Dubai International Financial Centre (DIFC), United Arab Emirates
About the project
Project general facts Sky Gardens is an exquisite high-rise tower situated in the prestigious Park Avenue, located in the heart of Dubai International Financial Centre (DIFC). The apartments in Sky Gardens have been meticulously designed to maximize both functionality and aesthetics. The one-bedroom apartments boast a generous layout, featuring a well-appointed hallway, a convenient guest washroom, a spacious lounge area, and a comfortable double bedroom with a dressing area. The en-suite bathroom adds a touch of luxury to the living experience. With thoughtful design elements and ample space, these apartments offer a comfortable and stylish living environment for residents to unwind and relax. In addition to the stunning apartments, Sky Gardens offers a range of amenities and facilities that enhance the living experience. Residents can enjoy a state-of-the-art fitness center, swimming pools, landscaped gardens, and dedicated parking spaces. The tower also provides 24-hour security and concierge services, ensuring a safe and convenient living environment for its residents. The unique design allows for an abundance of natural light to flood the apartments, creating a bright and airy living space.
Finishing and materials All finishes in the apartments
Kitchen and appliances With kitchen appliances
Furnishing Unfurnished, but the option to upgrade to full furniture at an extra price of 400 aed / sqft
Location description and benefits Park Avenue is a vibrant and thriving community nestled in the heart of Dubai, offering a luxurious and contemporary living experience. It is an exclusive residential destination that combines modern architecture, lush green spaces, and a range of amenities to create a truly exceptional community. As a community, Park Avenue boasts a prime location, with easy access to key areas such as Dubai International Financial Centre (DIFC), Sheikh Zayed Road, Business Bay, and Downtown Dubai. This central location ensures that residents have convenient connectivity to major road networks, allowing for seamless travel throughout the city. Park Avenue prioritizes a balanced and active lifestyle, offering a variety of amenities and facilities. Residents can enjoy beautifully landscaped gardens, fitness centers, swimming pools, and recreational areas, providing ample opportunities for relaxation, exercise, and socializing. Safety and security are paramount in Park Avenue, with 24-hour security services and well-trained staff ensuring a safe and secure living environment for residents. The community also fosters a sense of community and togetherness, with dedicated spaces for social gatherings and community events. Additionally, Park Avenue is surrounded by an array of retail outlets, restaurants, cafes, and entertainment options, adding convenience and vibrancy to residents' daily lives. This ensures that all essential needs and desires are met within close proximity, making Park Avenue a self-contained and desirable community.
Property Visuals5
Explore architecture, interiors, and virtual tours



Available Units
Discover your perfect home from 6 unit types
ApartmentsPrice not available
531-541 sqft
ApartmentsPrice not available
856-1148 sqft
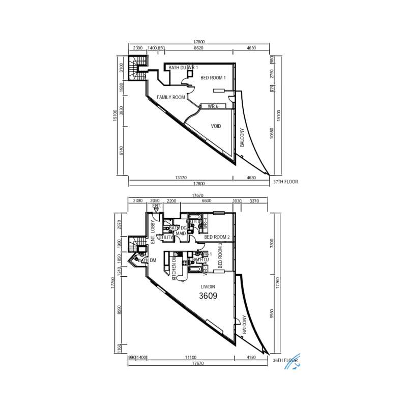
DuplexPrice not available
1038-1663 sqft
ApartmentsPrice not available
1281-1712 sqft
DuplexPrice not available
1460-1480 sqft
DuplexPrice not available
2855-2904 sqft
Facilities6
Premium amenities for enhanced living
KIDS AREAPremium amenity
LOUNGE AREAPremium amenity
GYMNASIUMPremium amenity
SWIMMING POOLPremium amenity
SPAPremium amenity
24 HR. CONCIERGEPremium amenity
6 premium facilities designed to elevate your lifestyle
Location
Dubai International Financial Centre (DIFC), United Arab Emirates
Loading map...
Nearby Points of Interest
Dubai Mall
Nearby
Museum of The Future
Nearby
Dubai Garden Glow، Zabeel Park
Short drive
The Apple International Community School
Short drive
La mer beach
Short drive
Similar Properties
Discover properties that might interest you
Akala Residences
Dubai International Financial Centre (DIFC), United Arab Emirates
From AED 3,865,000
CinemaGym+3 more
Eden House Za’abeel
Dubai International Financial Centre (DIFC), United Arab Emirates
AED 4,737,408 - 15,188,715
Outdoor and Indoor Swimming PoolsResidents’ Café+2 more



















