









Riviera 11
Mohammed Bin Rashid City (MBR), United Arab Emirates
About the project
Project general facts Riviera 11 combines the best of French Mediterranean design perspective and modern architecture to create the ideal place for modern community living. Riviera 11 comprises of 69 mid-rise residential buildings, a mega integrated retail district, breathtaking waterfront views and lush greenery. Riviera 11 invites its residents to feel at home and be a part of a diverse and multicultural community. Family-friendly outdoor activities, leisure, dining and retail therapy are a slice of everyday life. In more ways than one, Riviera 11 is creating a new paradigm for community living in Dubai. Riviera 11 comprises 69 mid-rise residential buildings divided into studios, one-bedroom, two-bedroom and three-bedroom apartments, a mega integrated retail district, breathtaking waterfront views, and lush greenery.
Finishing and materials High quality materials
Kitchen and appliances Premium appliances and bathroom fittings
Furnishing No
Location description and benefits Mohammed Bin Rashid City (MBR City) is a massive urban development project that contributes to Dubai's reputation as a global hub for business, tourism, and luxury living. MBR City spans an area of approximately 54 million square feet and is designed to be a comprehensive mixed-use development that combines residential, commercial, and leisure components. The project is divided into several districts, each offering a unique set of attractions and amenities. One of the key features of MBR City is its focus on luxury and innovation. The city also boasts a range of world-class amenities and attractions. These include vast green spaces, parks, and landscaped gardens, providing residents and visitors with opportunities for leisure and relaxation. The project includes the Dubai Canal, an impressive waterway that flows through the heart of MBR City, adding to the aesthetic appeal and offering waterfront living experiences. The development also places a strong emphasis on sustainability and green initiatives. MBR City incorporates eco-friendly technologies and practices, aiming to reduce energy consumption and carbon emissions. The project features smart city infrastructure, including advanced transportation systems, smart homes, and digital connectivity, enhancing the overall quality of life for residents.
Property Visuals4
Explore architecture, interiors, and virtual tours

Available Units
Discover your perfect home from 4 unit types
ApartmentsPrice not available
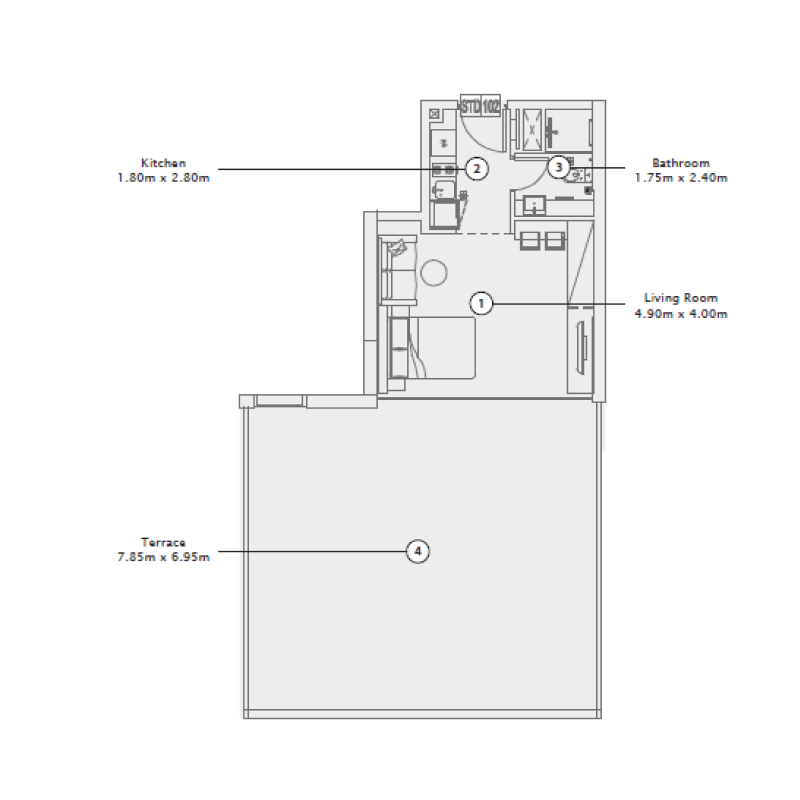
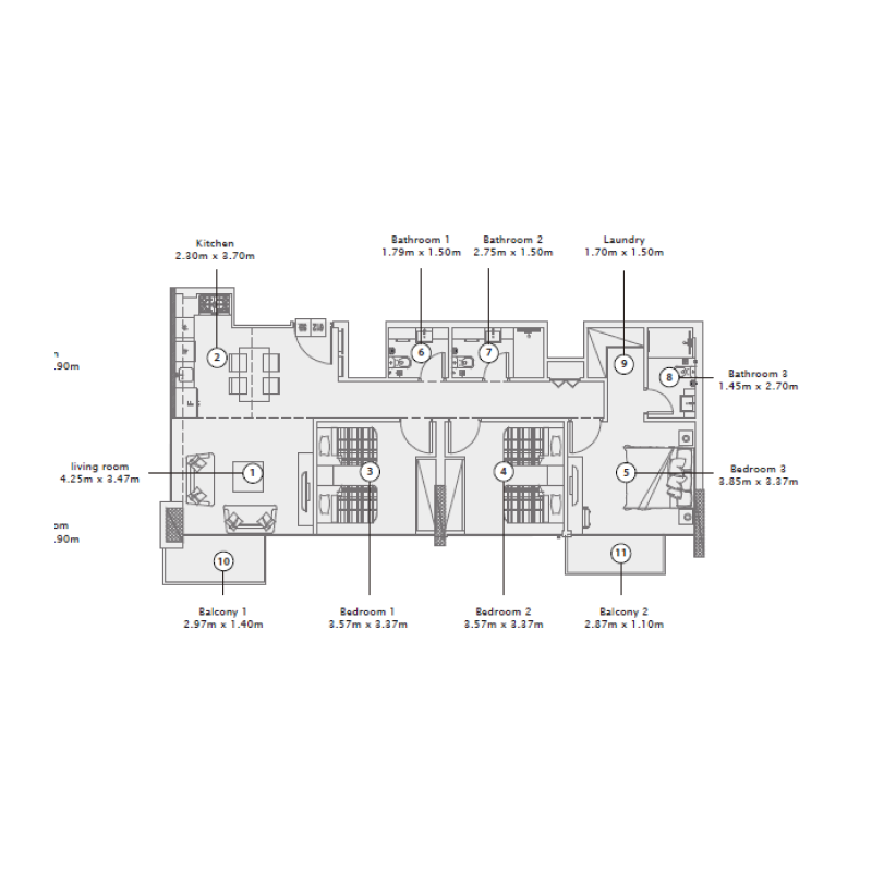
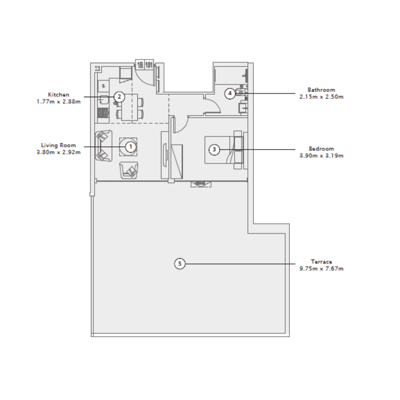
484-939 sqft
ApartmentsPrice not available
Area not available
ApartmentsPrice not available
Area not available
ApartmentsPrice not available
Area not available
Facilities6
Premium amenities for enhanced living
ZEN GardenPremium amenity
Yoga zonePremium amenity
LoungePremium amenity
Outdoor playPremium amenity
Swimming poolPremium amenity
BBQ SeatingPremium amenity
6 premium facilities designed to elevate your lifestyle
Location
Mohammed Bin Rashid City (MBR), United Arab Emirates
Loading map...
Nearby Points of Interest
Hartland International School Dubai
Nearby
Central Park
Nearby
Meydan One Mall
Short drive
Downtown Dubai
Short drive
Jumeirah Beach
Drive
Dubai International Airport
Drive
Similar Properties
Discover properties that might interest you
High Best Tower
Mohammed Bin Rashid City (MBR), United Arab Emirates
From AED 1,039,809.03
Yoga StudioFitness+11 more
The Watercrest
Mohammed Bin Rashid City (MBR), United Arab Emirates
From AED 5,998,898.27
Private PoolYoga Studio+8 more



















