









Five Palm Jumeirah
Palm Jumeirah, United Arab Emirates
About the project
Project general facts Introducing the exclusive “Come Play” Suites at the iconic FIVE Palm Jumeirah. Immerse yourself in 5\\* luxury, entertainment, and captivating views at this world famous lifestyle destination. Indulge in a plethora of exclusive amenities, inc access to a private 150m beach, state of the art fitness centre, world class dining options and a dedicated concierge. Experience unparalleled luxury in the heart of the prestigious FIVE Palm Jumeirah, these suites offer mesmerizing Dubai skyline views whilst you immerse yourself in the epitome of modern elegance, with meticulously designed interiors that combine sleek aesthetics with utmost comfort.
Finishing and materials Revel in up to 5m high ceilings that exude spaciousness and grandeur throughout, with views across the city.
Kitchen and appliances Kitchen equipped with the finest Miele appliances for a seamless living experience.
Furnishing Molteni&C furniture and kitchens
Location description and benefits Palm Jumeirah offers a range of world-class amenities and attractions. One of the most famous landmarks is the Atlantis, The Palm, a five-star resort located at the apex of the palm tree. It features an Aquaventure Waterpark, The Lost Chambers Aquarium, and a variety of luxury accommodations and dining options. Palm Jumeirah is also home to a vibrant marina, where residents and visitors can enjoy yachting, boating, and other water activities. The crescent-shaped breakwater is lined with luxury hotels, resorts, and beach clubs that offer stunning views of the Dubai skyline. Transportation on the island is facilitated by monorail, which connects Palm Jumeirah to the mainland, providing easy access to other parts of Dubai. The island is also well-connected by road networks and offers ample parking spaces for residents and guests.
Property Visuals4
Explore architecture, interiors, and virtual tours


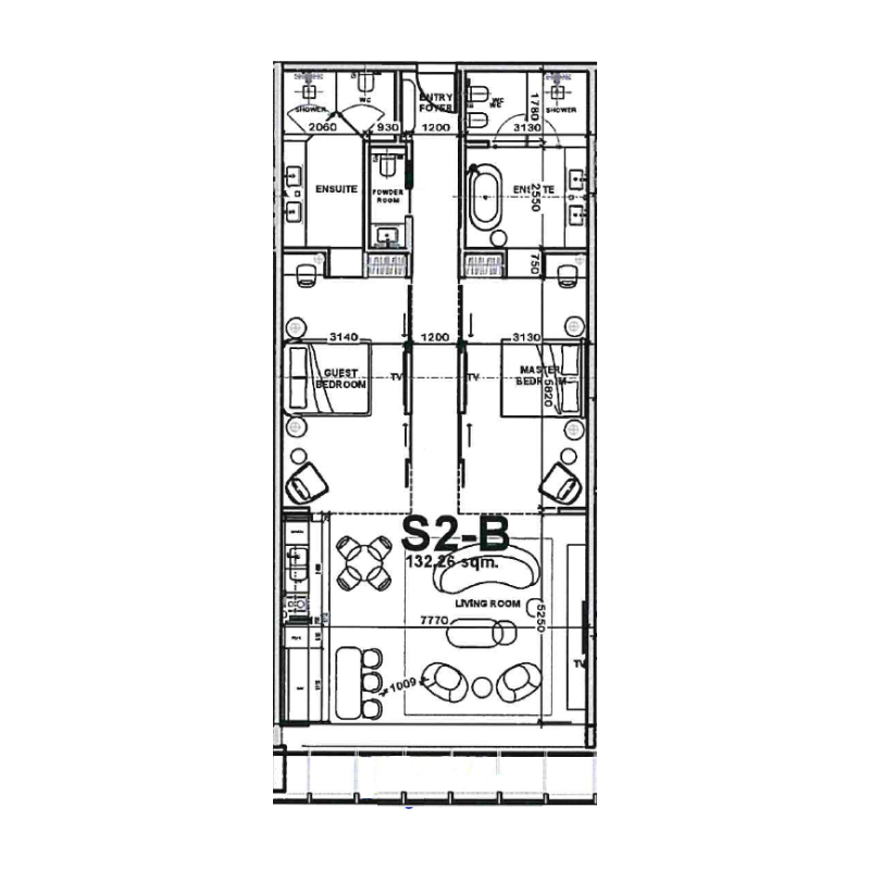
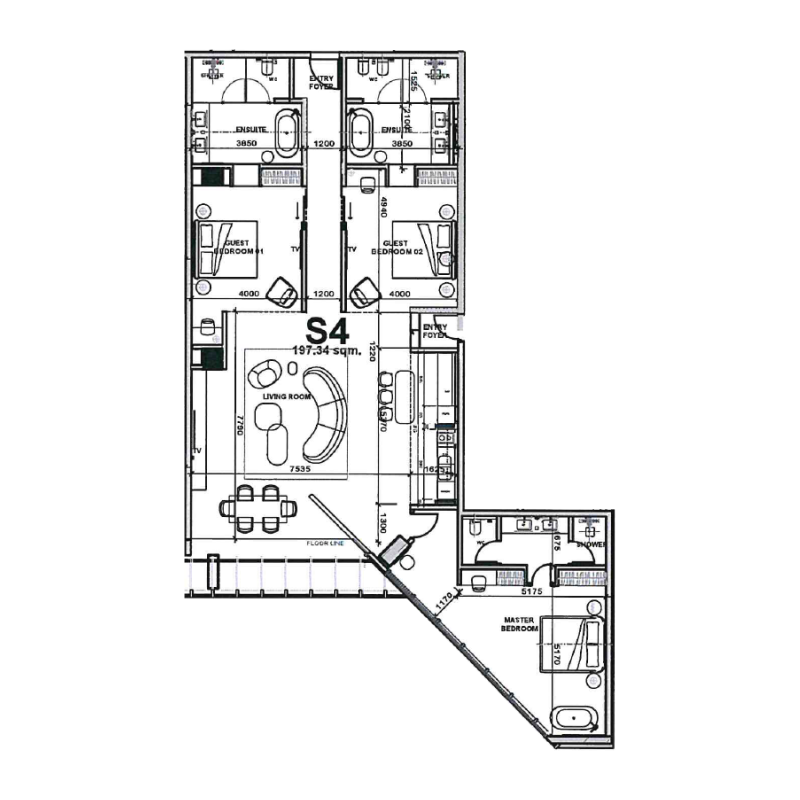
Available Units
Discover your perfect home from 2 unit types
Hotel ApartmentsPrice not available
1432-2328 sqft
Hotel ApartmentsPrice not available
Area not available
Facilities12
Premium amenities for enhanced living
BEACH BY FIVEPremium amenity
BLING (NIGHT CLUB)Premium amenity
THE PENTHOUSE (ROOFTOP DAY CLUB)Premium amenity
MAIDEN SHANGHAIPremium amenity
CINQUEPremium amenity
BLVD ON ONEPremium amenity
THE POOL BARPremium amenity
PRAIAPremium amenity
THE DELISSERIEPremium amenity
ROARPremium amenity
ABOVE 21Premium amenity
REFIVE SPAPremium amenity
12 premium facilities designed to elevate your lifestyle
Location
Palm Jumeirah, United Arab Emirates
Loading map...
Nearby Points of Interest
Jumeirah International Nurseries
Nearby
Al Ittihad Park
Nearby
Nakheel Mall
Nearby
Downtown Dubai
Drive
Dubai International Airport
Drive
Similar Properties
Discover properties that might interest you
Seven Palm
Palm Jumeirah, United Arab Emirates
From AED 6,500,888
Rooftop Infinity PoolFully Equipped Gym+5 more
Passo by Beyond
Palm Jumeirah, United Arab Emirates
From AED 4,508,600
Sky Pool & GardenArrival Lounge & Library+8 more

























