






Damac Hills 2 - Avencia
Damac Hills 2, United Arab Emirates
About the project
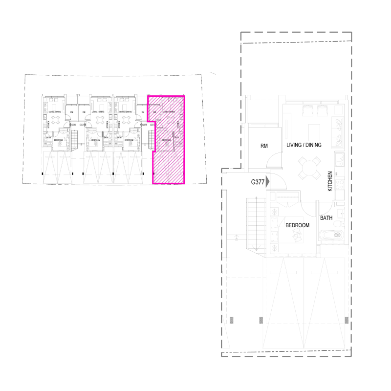
Project general facts Surrounded by an environment in which the urban experience blends seamlessly with landscaped parks and pristine lakes, Avencia Villas redefines everything you thought you knew about living in the city. Avencia Villas makes room for family. With their green yards, generous living rooms and kitchen spaces, powder and bathrooms and ample parking, these 2 and 3 bedroom homes are the perfect place to watch your family grow.
Finishing and materials With uncompromising levels of craftsmanship, attention to the finest details and ergonomically inspired designs, these living, breathing homes are more than just places to live
Kitchen and appliances Fully equipped kitchen
Furnishing Semi-furnished (wardrobes)
Location description and benefits Damac Hills 2 is a residential community located in Dubai, United Arab Emirates. It is a master-planned development that offers a range of housing options, including apartments, townhouses, and villas. The community is spread over an area of 55 million square feet and features a range of amenities, including parks, playgrounds, swimming pools, and fitness centers. There are also retail outlets, restaurants, and cafes within the community, providing residents with easy access to daily essentials. Damac Hills 2 is designed with a focus on sustainability, incorporating green spaces and eco-friendly features throughout the community. The development also offers a range of leisure facilities, including a golf course, tennis courts, and a skate park.
Property Visuals4
Explore architecture, interiors, and virtual tours



Available Units
Discover your perfect home from 2 unit types
TownhousePrice not available
Area not available
TownhousePrice not available
Area not available
Facilities15
Premium amenities for enhanced living
Own Rooftop GardenPremium amenity
Lazy RiverPremium amenity
Splash PadPremium amenity
Swimming PoolPremium amenity
Sports TownPremium amenity
Fishing LakePremium amenity
Farmer’s Market Petting FarmPremium amenity
Floating CinemaPremium amenity
Paddle BoardingPremium amenity
Lake CafePremium amenity
Hedge MazePremium amenity
Chess SlatePremium amenity
Waterside CafePremium amenity
Zen GardenPremium amenity
AmphitheatrePremium amenity
15 premium facilities designed to elevate your lifestyle
Location
Damac Hills 2, United Arab Emirates
Loading map...
Nearby Points of Interest
DAMAC HILLS 2 PARK
Short drive
Damac Hills 2 - Community Center
Short drive
Shining Stars Nursery Dubai
Short drive
Al Maktoum International Airport
Drive
Ocean Beach
Drive
Downtown
Drive
Similar Properties
Discover properties that might interest you
Elo 2 and 3 Damac
Damac Hills 2, United Arab Emirates
From AED 576,894.05
Swimming PoolWall Climbing+8 more
Natura
Damac Hills 2, United Arab Emirates
From AED 1,828,664.16
BBQ AreasBoating Lake+2 more


























