













Catch Residence by IGO
Jumeirah Village Circle (JVC), United Arab Emirates
About the project
Project general facts Inspired by the sundrenched style of the USA, life at Catch Residences is a unique fusion of sophisticated urban style, balanced with a dose of hedonistic gratification. Situated in the heart of the sought-after JVC community, this architecturally impressive tower consists of 21 floors of striking views, spacious living. complete security & safety, high quality fixtures and fittings, and an array of premium lifestyle amenities, spanning fitness, family and community
Finishing and materials The spacious living areas use light-toned colour schemes, while large windows fill the apartments allowing sunlight to stream into the apartments, while the floors flow smoothly throughout the home with Italian-made Porcelain Tiles.
Kitchen and appliances The modern, state-of-the-art kitchens feature premium counter tops, high gloss cabinetry and come complete with high-end appliances.
Furnishing No
Location description and benefits Commonly known as JVC, the area is on its way to becoming one of Dubai’s most vibrant communities due to its boundless lifestyle options and ability to offer residents everything they could need within moments of home. A fully self-serving community, JVC offers everything a resident could want from supermarkets, ample coffee shops, restaurants and beauty salons, to the outdoor-lovers need for space with 30 landscaped parks planned for the district, and 18 already completed, and a vast array of children’s play areas, pet friendly zones and running tracks. A cycling track is planned.
Property Visuals5
Explore architecture, interiors, and virtual tours





Available Units
Discover your perfect home from 3 unit types
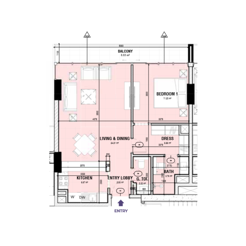
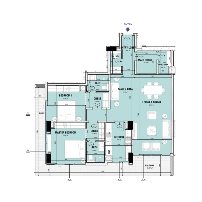
3 bedroomAED 2,875,504 - AED 3,198,751
2672-3167 sqft
2 bedroomAED 1,586,485 - AED 1,776,863
1511-1561 sqft
UnitPrice not available
Area not available
Facilities7
Premium amenities for enhanced living
GymPremium amenity
Barbecue areaPremium amenity
Outdoor lounge terracePremium amenity
Fresh Daily, juice stationPremium amenity
Game Zone with ping pong, foosball and social areasPremium amenity
Outdoor poolsPremium amenity
Adult poolPremium amenity
7 premium facilities designed to elevate your lifestyle
Location
Jumeirah Village Circle (JVC), United Arab Emirates
Loading map...
Nearby Points of Interest
Circle Mall JVC
Nearby
JSS International School
Short drive
Dubai Mall
Drive
Sufouh beach
Drive
Dubai Marina
Drive
Burj Al Arab
Drive
Jumeirah Beach
Drive
DXB Airport
Drive
Similar Properties
Discover properties that might interest you
New Project by Tabeer
Jumeirah Village Circle (JVC), United Arab Emirates
From AED 670,000
Swimming PoolKids’ Pool & Splash Zone+6 more
New Project by Empire Developments
Jumeirah Village Circle (JVC), United Arab Emirates
AED 1,104,777 - 1,224,777
Infinity PoolGym & Wellness Zone+4 more














