













California Village
City of Arabia, United Arab Emirates
About the project
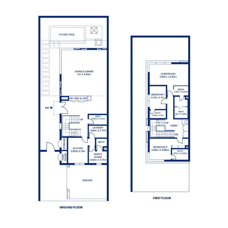
Project general facts California Village is a safe haven for growing families, designed to support you every step of the way. Through a slew of amenities that cater to the needs of both you and your family, it aims to create a space where growth, adventure, bonding, and serenity are at the forefront of living. Entertaining and hosting gatherings has never been this easy. With its large and spacious living and dining areas, every home has been designed to help nurture your family, develop friendships, and create experiences that will last a lifetime. Taking inspiration from its surroundings, the neutral color palette in California Village is exemplified by its modern, contemporary, and timeless design, with horizontal lines, wooden finishes, and bright white colors. The spacious and expansive plots come with stunning interiors, creating a haven of beauty and comfort. The homes come in a variety of 3 & 5 bedrooms, and include spacious courtyards that are ideal for barbeques, hosting friends, and providing additional space for your children to play.
Finishing and materials Modern finishing with high quality materials
Kitchen and appliances No appliances
Furnishing No
Location description and benefits City of Arabia is a visionary mega-development in Dubai, United Arab Emirates. This vast project spans over 20 million square feet and aims to create a self-sustaining city within the city. At the heart of this development lies the iconic Mall of Arabia, one of the world's largest malls. It offers a diverse range of shopping, dining, and entertainment options, making it a central attraction for residents and visitors alike. City of Arabia is not just about shopping and leisure; it also features various residential communities, including apartments, townhouses, and villas, catering to different lifestyles and preferences. This ensures a comfortable and convenient living experience for its residents. Additionally, the development includes an extensive entertainment hub, adding to its appeal as a self-contained urban environment in Dubai.
Property Visuals4
Explore architecture, interiors, and virtual tours









Swipe or scroll to see more • Click any image to open gallery
Available Units
Discover your perfect home from 3 unit types
TownhousePrice not available
3074-3147 sqft
VillaPrice not available
4024-4166 sqft
UnitPrice not available
4024-4166 sqft
Facilities5
Premium amenities for enhanced living
Kids AreaPremium amenity
ClubhousePremium amenity
Swimming PoolPremium amenity
Community GymPremium amenity
Lush Green ParkPremium amenity
5 premium facilities designed to elevate your lifestyle
Location
City of Arabia, United Arab Emirates
Loading map...
Nearby Points of Interest
GEMS Winchester School
Nearby
IMG Worlds of Adventure
Nearby
Arabian Ranches Retail Mall
Drive
Downtown Dubai
Drive
Jumeira Public Beach
Drive
Dubai International Airport
Drive
Similar Properties
Discover properties that might interest you
Azizi Milan
City of Arabia, United Arab Emirates
AED 586,000 - 3,396,000
Multiple Retail BoulevardsBBQ Areas+6 more
Laguna Residence
City of Arabia, United Arab Emirates
From AED 599,889.83
Viewing Deck with LoungeOutdoor & Indoor Cinema+18 more


















