














Anwa
Dubai Maritime City, United Arab Emirates
About the project
Project general facts ANWA is the first and tallest tower in Dubai Maritime City, with 44 dazzling floors, 229 elegant residences and 4 retail units - all with magnificent views of the Arabian sea and Dubai. Its unique location and splendid design make it the perfect home - a place where you can truly relax and enjoy life, to a spectacular soundtrack of waves, with an ever-inspiring interplay of sea and sun, in absolute tranquility - yet just a step away from exciting and amazing dining, entertainment and cultural possibilities. Perfectly positioned at the heart of a vibrant waterfront community and connected to exciting and innovative living experiences. ANWA is surrounded by some of the most iconic destinations in Dubai, such as the Queen Elizabeth II, the ocean liner, dining, and events venue, docked a few minutes away from your home at ANWA. Within five minutes from your peaceful home at ANWA you can find a premium selection of thrilling destinations in Jumeirah, such as the famously cool Nikki Beach club or the stunningly extravagant Bulgari Resort Dubai and the exclusive Four Seasons Resort. If you’re craving laid- back or action-packed fun, La Mer is the perfect playground, with a vast array of entertainment offers for the family.
Finishing and materials Flooring - Marble stone throughout all FOH living areas. Walls and ceiling - High quality paint finish. External Storage - A limited number available in podium parking. Sizes 4-8sqm. Bathrooms - Fully finished bathroom with Travertino ceramic tiles, tapware and sanitary ware from Bagno Design. Wardrobes & doors - Durable, American timber-look HPL. Ironmongery from Euroart. Alico system glazing. Staff accomodation in 2b and 3b units, with natural light. Ceiling height – 3.3m, double height living units 6.6m
Kitchen and appliances Fully fitted European kitchens by Porcelanosa with integrated cooking, cooling and cleaning appliances by Gorenje: Electric Oven; Electric Hob; Dishwasher; Refrigerator; Washer/dryer
Furnishing No
Location description and benefits Dubai Maritime City is a unique and innovative community located in the heart of Dubai. As a specialized maritime hub, it offers a comprehensive range of services, facilities, and infrastructure to support the maritime industry, making it a prominent destination for maritime-related activities. Dubai Maritime City is designed to create a conducive environment for businesses and professionals in the maritime sector. The community features state-of-the-art shipyards, dry docks, and repair facilities, catering to the needs of shipbuilding, repair, and maintenance companies. It also offers specialized zones for maritime businesses, including maritime services, marine equipment providers, and maritime education and training institutions. Dubai Maritime City is strategically located, offering convenient access to major transportation hubs and business districts. The community benefits from its proximity to Dubai's ports, connecting it to global trade routes and facilitating seamless movement of goods and services. Its strategic location ensures efficient logistics and easy connectivity for businesses and residents alike.
Property Visuals5
Explore architecture, interiors, and virtual tours




Available Units
Discover your perfect home from 5 unit types
3 bedroomAED 3,863,092 - AED 6,163,496
Area not available
ApartmentsPrice not available
1364-1367 sqft
2 bedroomAED 2,393,609 - AED 2,913,183
1362-1401 sqft
4 bedroom PenthousePrice not available
Area not available
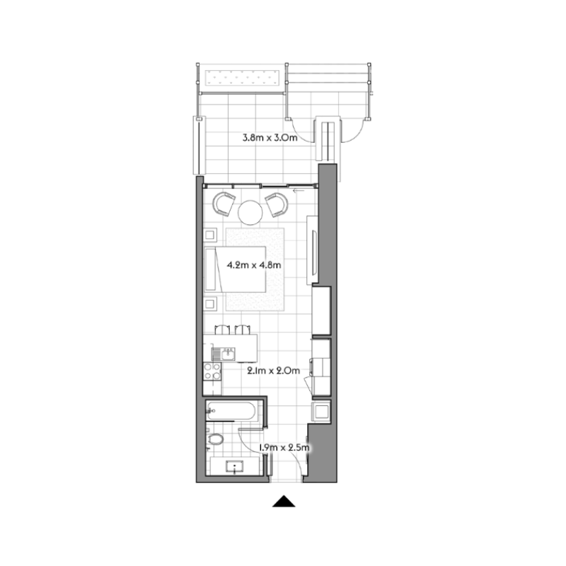
StudioPrice not available
Area not available
Facilities5
Premium amenities for enhanced living
Kids poolPremium amenity
GymPremium amenity
Infinity poolPremium amenity
Kids play areaPremium amenity
Yoga/ Pilates roomPremium amenity
5 premium facilities designed to elevate your lifestyle
Location
Dubai Maritime City, United Arab Emirates
Loading map...
Nearby Points of Interest
Ambassador School
Short drive
City Centre Al Shindagha
Short drive
Jumeira Public Beach
Short drive
Downtown
Drive
Dubai International Airport
Drive
Similar Properties
Discover properties that might interest you
Soulever by Beyond
Dubai Maritime City, United Arab Emirates
From AED 2,925,000
GymSpa+8 more
Breez
Dubai Maritime City, United Arab Emirates
From AED 1,304,000
Infinity Pool & JacuzziFloating Cabanas+10 more

















